top of page
MAUSEIDVÅG - Pettergjerdet
To prosjekterte tomannsboliger i rolig område i Mauseidvåg. Kort vei til skole og barnehage, buss og flott natur og turterreng.
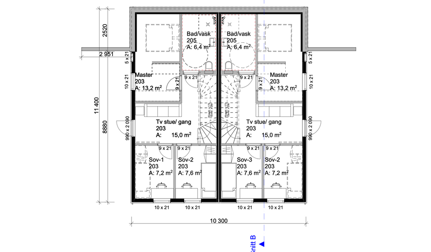
Boligene har et moderne uttrykk med god planløsning med blant annet 3 soverom og eget tekn./vaskerom. Nøkkelferdig leveranse med god standard, vannbåren varme, Royal bordkledning og carport inkludert i pris.
Kontakt oss for mer informasjon.
UTSOLGT
bottom of page















